2020年順德區“6·27”較大坍塌事故調查報告
2020年6月27日10時17分,位于佛山市順德區高新區西部啟動區D-XB-10-03-A-04-2地塊項目8號樓在澆筑屋面構造梁過程中發生一起坍塌事故,造成3人死亡、1人受傷(以下簡稱“6·27”較大事故)。
事故發生后,省、市領導同志對傷員救治和善后處置工作作出批示,市、區、鎮政府和相關部門負責同志趕赴現場組織開展應急救援工作。根據《中華人民共和國安全生產法》和《生產安全事故報告和調查處理條例》(國務院令第493號)等有關法律法規要求,佛山市人民政府成立由市紀委監委、應急管理局、公安局、住房城鄉建設局、市場監管局、司法局、總工會和順德區人民政府負責同志組成的事故調查組,對順德區“6·27”較大坍塌事故開展調查。調查組聘請專家并委托有資質的技術服務機構協助開展調查。
事故調查組堅持“四不放過”和“科學嚴謹、依法依規、實事求是、注重實效”的原則,通過現場勘查、調查取證、人員問詢、三維還原及技術分析、專家論證、查閱資料,查明事故發生的原因、經過、人員傷亡和直接經濟損失等情況,認定了事故的性質和責任,提出了對有關責任人員和責任單位的處理建議。同時,針對事故原因和暴露出的問題,總結了事故主要教訓,提出了事故防范措施建議。
一、事故基本情況
(一)工程項目概況
1.涉事地塊基本情況
事發地塊為順德高新區西部啟動區D-XB-10-03-A-04-2地塊(以下簡稱“涉事地塊”),占地面積280畝,總建筑面積約56萬平方米,將建成集招商中心、高層廠房、公寓及員工宿舍為一體的先進廠房區。
項目分三期建設,目前在建的為一期工程(二、三期工程尚未開建),投資建設單位為佛山順德宏鉅科技產業發展有限公司。一期工程建設1號至10號辦公樓和廠房,分A、B兩標。A標包含1號、2號、3號、8號、9號樓,由廣東大城建設集團有限公司負責施工建設;B標包含4號、5號、6號、7號、10號樓,由中建四局負責施工建設。
2019年4月29日,佛山順德宏鉅科技產業發展有限公司取得涉事地塊規劃許可證(地字第440606201900036號)。
2019年5月9日,佛山順德宏鉅科技產業發展有限公司取得涉事地塊不動產權證(不動產單元號:440606 610520 GB00048 W00000000)。
2.涉事工地審批情況
2019年9月20日,佛山順德宏鉅科技產業發展有限公司取得建設工程規劃許可證(建字第440606201909035號),建設項目為2-3號樓、8-9號樓。
2019年10月31日,佛山順德宏鉅科技產業發展有限公司取得建筑工程施工許可證(編號440606201910310301),工程為2-3號樓、8-9號樓。建設規模126115.94平方米/8層;合同價格:16488.3535萬元。
2020年4月7日,佛山順德宏鉅科技產業發展有限公司辦理2-3號樓、8-9號樓建設工程規劃許可變更,變更圖紙44張。
2020年4月21日,佛山順德宏鉅科技產業發展有限公司辦理建筑工程施工許可證變更。其中涉事8號樓建筑面積進行了變更,從原來的50808.6平方米變更為51219.37平方米。
3.涉事8號樓工程概況
8號樓分南北兩座,中間通過二層平臺聯結,變更前建筑面積50808.6平方米,變更后建筑面積為51219.37平方米,總高41.4米,共8層,首層高6.45米,二層至七層高4.5米/層,八層高4.55米。涉事坍塌的屋面構造梁柱總高3.6米,框架結構類型,施工時設一條后澆帶。8號樓于2019年10月31日開工建設,2020年6月2日、3日和10日、12日分四次完成屋面封頂,原計劃2020年12月4日竣工。
(二)有關單位情況
1.建設單位情況
涉事工地建設單位為佛山順德宏鉅科技產業發展有限公司[](以下簡稱“宏鉅公司”),持有《中華人民共和國房地產開發企業資質證書》[]。宏鉅公司2018年10月10日競得涉事地塊使用權;2019年8月宏鉅公司以費率招標方式[],確定結算綜合單價進行項目招標。
2.施工單位情況
廣東大城建設集團有限公司[](以下簡稱“大城公司”),持有中華人民共和國住房和城鄉建設部核發的《建筑業企業資質證書》[]、持有廣東省住房和城鄉建設廳核發的《建筑業企業資質證書》[]、持有湛江市住房和城鄉建設局核發的《建筑業企業資質證書》[]、持有廣東省住房和城鄉建設廳《安全生產許可證》[]。
2019年8月27日,大城公司與宏鉅公司簽訂廣東省建設工程標準施工合同,承包涉事地塊項目2-3號樓,8-9號樓建設項目。[]工期從2019年10月31日開始施工至2020年12月4日竣工,總日歷天數400天,合同總價164050661.8元。大城公司按合同約定工期,于2019年10月底進場施工。
3.監理單位情況
廣東建友工程建設監理有限公司[](以下簡稱“建友公司”),持有《中華人民共和國房地產建筑監理企業資質證書》[]。2019年8月16日,建友公司與宏鉅公司簽訂建設工程監理合同。監理范圍包括涉事地塊一期項目所有工程監理(需要專業監理資質監理的分項工程除外),監理服務期15個月。
4.設計單位情況
深圳機械院建筑設計有限公司[](以下簡稱“深圳機械院”),持有《中華人民共和國建筑設計企業資質證書》[]。2019年7月28日,深圳機械院與宏鉅公司簽訂建筑全過程設計及顧問服務合同。合同約定,深圳機械院負責涉事工地的概念設計階段、方案設計階段、初步設計階段、施工圖設計階段、立面深化設計階段、專項設計配合及銷售附圖設計階段、施工配合階段的設計及顧問工作。
5.審圖單位情況
廣東建同工程技術咨詢有限公司順德分公司[](以下簡稱“建同”公司),于2019年8月5日與宏鉅公司簽訂建設工程施工圖審查合同,負責承擔涉事工地施工圖審查。
(三)事故現場基本情況
涉事8號樓東、西面是施工通道,南、北面是在建工地。8號樓分南樓和北樓,南北樓之間由一條寬16米的二層平臺連接。二層平臺東側設有一臺塔式吊機。8號樓北樓四周搭設有外腳手架,涉事坍塌的屋面構造梁梁面距地面41.1米,該梁在澆筑(8-7)軸×(8-J)~(8-N)軸混凝土施工過程中模板支架失穩(模板支架約28米)向外側翻倒塌,倒塌的模板支架、外腳手架及4名操作工人跌落二層平臺,造成3人死亡、1人受傷,并導致二層平臺鋼筋混凝土結構破損約40平方米、平臺多處被擊穿。

圖1:總體平面示意圖

圖2:工人墜落的8號樓二層平臺

圖3:二層平臺鋼筋混凝土結構破損、多處被擊穿
(四)事故傷亡情況
事故共造成3人死亡、1人受傷,均為事故坍塌的屋面構造梁澆筑混凝土的施工工人。
1.程某全,男,1963年8月出生,四川省瀘州市瀘縣人,施工單位大城公司員工。事故中造成重型顱腦損傷,經南方醫科大學順德醫院附屬杏壇醫院全力搶救無效,于2020年6月27日17時30分死亡。
2.李某林,男,1974年5月出生,四川省瀘州市瀘縣人,施工單位大城公司員工。事故中造成重型顱腦損傷,經南方醫科大學順德醫院附屬杏壇醫院全力搶救無效,于2020年6月27日20時00分死亡。
3.管某邊,男,1960年9月出生,湖南省衡陽市祁東縣人,施工單位大城公司員工。事故中造成重型顱腦損傷,經南方醫科大學順德醫院附屬杏壇醫院全力搶救無效,于2020年6月27日21時20分死亡。
4.杜某軍,男,1976年7月出生,四川省樂山市犍為縣人,施工單位大城公司員工。事故中因墜落受傷,送南方醫科大學順德醫院附屬杏壇醫院全力搶救,后轉院至南方醫科大學順德醫院,傷勢穩定,無生命危險。
(五)直接經濟損失情況
根據《企業職工傷亡事故經濟損失統計標準》(GB6721-1986)等標準和規定統計,核定事故直接經濟損失為467.205萬元。
二、事故發生經過及應急處置情況
(一)事故發生經過
2020年6月27日上午8時15分許,順德新翔混凝土公司司機駕駛混凝土運輸車到達事發8號樓施工工地。
9時40分許,大城公司混凝土班班長李某海與混凝土施工工人陶某寬、李某林、程某全、杜某軍、管某邊6人在8號樓頂樓開始為8號樓樓頂屋面構造梁、柱澆筑混凝土。工人首先自西向東澆筑了4根柱子,然后自東向西分層澆筑屋面構造梁。
10時15分許,第一車混凝土澆筑完畢,準備開始澆筑第二車混凝土時,李某海發現剛澆筑的屋面構造梁開展傾斜,便大聲呼喊其他人員趕快撤離。最終,只有站在距離外腳手架西北角較近的李某海和陶某寬撤離到了安全范圍。混凝土工人李某林、程某全、杜某軍、管某邊等四人隨模架及外腳手架一起掉落到8號樓二層平臺。
(二)事故應急處置情況
1.事故接報及應急處置情況
2020年6月27日10時15分,大城公司施工員黃某平發現事故發生后立即撥打120救助電話,現場安全員拉起警戒線。項目經理助理常某輝立即致電佛山分公司負責人齊某報告事故情況,并電話通知了區住建部門。齊某隨后趕到事故現場協助進行善后工作。
10時26分,杏壇鎮公安民警到達事故現場維持秩序。10時33分,救護車抵達事故現場,10時45分,消防救援隊抵達事故現場開展應急救治和現場處置?,F場對4名傷者施行緊急救治后送南方醫科大學順德醫院附屬杏壇醫院搶救。17時30分,程某全經搶救無效死亡;20時00分,李某林經搶救無效死亡;21時20分,管某邊經搶救無效死亡。杜某軍經救治傷情平穩,無生命危險。
2.地方政府和相關部門應急響應情況
順德區黨委、政府接到事故信息報告后,立即啟動應急響應,迅速組織區、鎮公安、應急、安監、住建等部門按照職能職責,開展事故應急處置工作。11時許,杏壇鎮主要領導、分管領導率鎮應急、安監、公安、衛計等部門趕到事故現場,緊急組織開展傷員救治、現場警戒管控、維持秩序等工作。11時20分左右,區應急、住建部門主要領導、分管領導率相關業務科室工作人員到達事故現場,組織開展事故應急處置工作,封鎖、查勘事故現場、詢問了解事故情況、要求涉事工地停工整頓、管控相關負責人以及協調處置善后相關工作。期間,區應急管理局、區住房城鄉建設和水利局分別向上級部門電話報告相關事故信息。12時許,順德區黨政主要領導、分管領導趕赴事故現場指揮善后處置工作。13時許,市應急部門主要領導、分管領導,市住建部門分管領導率相關科室到達事故現場,傳達市黨政主要領導、分管領導的指示,并指導事故救援和應急處置工作以及開展事故調查前期工作。
當天下午,市安委辦、市住房城鄉建設局聯合組織各區住建系統負責人召開事故現場會,要求該起事故涉及的施工單位、監理單位在我市的所有在建工程全部停工檢查,要求各區立即在建筑行業領域全面開展隱患大排查。
3.事故善后處置情況
順德區政府成立7個工作組,有序開展傷員救治、家屬安撫、工地排查等事故善后處置工作。
4.應急處置評估結論
各級黨委、政府和相關部門決策科學合理,應急機制及時有效,現場救援處置得當,信息報送準確及時,善后工作有序有效。
三、事故原因及性質認定
(一)事故直接原因
事故調查組經過現場勘驗、無人機航拍、三維建模及技術分析、對相關人員的談話問詢、查閱設計圖紙、對模板支撐系統實測實量以及聘請第三方技術服務機構依據現行國家施工規范要求對事故屋面構造梁模板支撐系統進行技術分析、對屋面構造梁設計圖紙進行安全性復核驗算等大量調查取證和分析論證工作,認定事故直接原因為:施工單位搭設的8號樓屋面構造梁柱模板支架不合理,屋面構造梁存在偏心現象而未采取有效防范措施,當屋面構造梁柱澆筑混凝土時,隨著荷載越來越大,產生的偏心力矩也越來越大,引起斜立桿失穩導致模架向外傾覆倒塌。
具體分析如下:
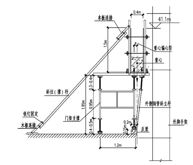
1.模板支架受力分析
屋面構造梁模板支架構造明顯不合理(見圖4.1),現有構造梁模板及梁實體結構重心偏離了門架最外側支撐桿以外(見圖4.2),門式支撐架的實際作用達不到模板支架穩定的預期效果,導致施工過程產生的荷載對門式支撐架產生了較大的偏心力矩,使偏心力矩變為主要由外側的鋼管斜立桿承受。

圖4.1屋面構造梁模板支架構造圖

圖4.2模板支撐橫斷面示意圖
因外側鋼管斜立桿成了關鍵受力桿件,故對承擔主要偏心力矩的外側鋼管斜立桿進行受力分析(見圖4.3)。
可見:施工荷載對斜立桿產生的豎向力N可分解為對斜立桿的軸心壓力N1與水平推力N2,水平推力N2對斜立桿底部產生向外轉動的力矩,由于斜立桿上下均無設置可靠的桿件進行連接,沒有平衡斜立桿轉動的有效約束措施,僅靠斜立桿上下支撐點的摩擦力約束作用,極不可靠,當上部澆筑混凝土時產生的荷載越來越大,力矩M也越來越大,大到一定程度,支撐點的摩擦約束失效,引起斜立桿失穩。

圖4.3斜立桿受力分析示意圖
當外排斜立桿失穩,偏心力矩由側向拉(撐)桿承受,并對其產生拉力,對側向拉(撐)桿進行受力驗算,按桿件間距按2.0m,梁混凝土按實際施工完成0.6m高進行計算,驗算結果,斜桿受到的拉力為2.87kN(約為287千克力),現有拉(撐)桿僅使用幾根鐵釘和木板與鋼管連接(見圖4.4,圖4.5),連接處明顯不牢固,不可靠,不可能承受2.87kN的拉力,該斜向拉(撐)桿不起作用,不能起到防止梁模板側傾的作用。

圖4.4構造梁拉(撐)桿圖

圖4.5構造梁拉(撐)桿底部圖
2.模板支撐架倒塌原因分析
(1)由于屋面構造梁截面及自重較大,且存在偏心的情況,梁外邊線外偏樓面200mm,現有模板支撐無施工方案,也未根據現場實際條件進行技術交底,現場搭設模板支撐時未對偏心情況采取合理有效解決方法,只簡單的在門架支撐外側增加了一排鋼管斜立桿進行處理,由于此方法不合理,使得附加的外排斜立桿承擔了主要的偏心力矩。由于外排鋼管斜立桿只單排獨立設置,斜立桿存在向外傾斜等不利因素,且外排立桿未按施工規范要求設置掃地桿以及縱橫向連接桿件等有效連接構造措施,外排鋼管斜立桿也未與門式鋼管支撐架連成整體,梁模板側面斜向防傾拉(撐)桿設置不當,連接不牢固、不可靠,基本上不起作用,模板支架沒有形成安全有效的側向支撐系統,整個模板支撐系統未形成安全穩定的受力體系。
(2)當屋面構造梁進行混凝土澆搗時,荷載對梁模板外側鋼管斜立桿產生偏心力矩,受力分析表明,上部荷載對斜立桿產生的水平推力對斜立桿底部產生向外轉動的力矩,而由于斜立桿上下均無設置可靠的桿件進行連接,沒有平衡斜立桿轉動的有效約束措施,僅靠桿件支撐點的摩擦力提供約束,并不可靠,根本限制不了斜立桿的轉動,當上部澆筑混凝土時產生的荷載越來越大,產生的力矩也越來越大,到一定程度,支撐點提供的摩擦約束失效,引起斜立桿失穩倒塌,斜立桿失穩后模板及實體梁重心完全偏離模板支撐架之外,經計算,此時偏心力矩對模板斜拉(撐)桿產生的拉力為2.87kN(約為287千克力),而模板側面的斜拉(撐)桿因構造連接方式不當,僅使用木板條與幾根鐵釘連接固定斜桿,此連接方式顯然不能承受所產生的拉力,起不到防止模板支架側傾的作用,導致梁模板及已澆搗的梁混凝土向外傾覆并帶動模板支架整體向外倒塌,造成安全事故。
3.排除自然災害因素造成事故
經調查組現場勘察,結合順德區地震局和順德區杏壇鎮高贊村委會自動氣象站記錄,6月27日上午9時至11時,事發地天氣晴、無降水,氣溫31℃~34℃,偏西風1~2級,無地震發生。排除因地震、惡劣天氣等自然災害因素引發事故的可能性。
(二)事故間接原因
1.施工單位嚴重違反安全生產法律法規和有關規定
施工單位廣東大城建設集團有限公司項目經理長期不在崗,[],安全管理機構與實際不符、[]安全管理混亂,日常管理工作實際由高中未畢業且不具備任何相應執業資格和管理能力[]的項目經理助理常某輝負責,安全管理工作實際由小學文化程度且不具備相應安全管理能力的生產主管洪某明統籌,專職安全管理人員職責不明,工作隨意[];沒有針對屋面構造梁模板工程編制專項施工方案[],且事后弄虛作假偽造專項施工方案應對調查;隱患排查制度未落實,檢查流于形式,沒有發現8號樓屋面構造梁模板支撐體系存在重大安全隱患并及時消除[];8號樓屋面構造梁模板工程驗收程序流于形式,項目技術負責人和項目經理未按要求到現場參與驗收,驗收記錄弄虛作假[];施工前,未對有關安全施工的技術要求作出詳細說明[],沒有進行方案交底,沒有進行安全技術交底[];未對從業人員進行安全生產教育和培訓,教育培訓檔案資料造假[];施工方案審批表、施工日志等檔案資料弄虛作假[]。
2.監理單位工作形同虛設
監理單位廣東建友工程建設監理有限公司對施工單位項目經理長期不在崗、安全管理混亂、安全生產檔案資料弄虛作假行為放任不管;對工程設計文件不熟悉[],對8號樓屋面構造梁施工涉及危大工程不清楚、不掌握;沒有發現并督促施工單位在8號樓屋面構造梁施工前編制危大工程專項施工方案;沒有認真審查施工組織設計中的安全技術措施是否符合工程建設強制性標準[];沒有結合8號樓屋面構造梁模板支撐體系危大工程編制監理實施細則,沒有對該危大工程施工實施專項巡視檢查[];日常巡查沒有發現8號樓屋面構造梁模板支撐體系存在重大安全隱患并消除[];對8號樓屋面構造梁搭建的模板支撐體系驗收流于形式,專業監理工程師未按規定到場參與驗收[],監理員對模板支撐體系存在的重大安全隱患視而不見,監理形同虛設。
3.設計單位工作存在重大疏漏
設計單位深圳機械院建筑設計有限公司未在設計文件中注明8號樓屋面構造梁施工涉及危大工程,沒有提出保障工程施工安全的意見[];未進行設計交底,未針對8號樓屋面構造梁向建設單位、施工單位、監理單位作出特別說明。[]調查組聘請有關設計專家對屋面構造梁、柱進行復核計算,判定屋面構架柱配筋設計不滿足正常使用及抗震設計受力要求。
4.建設單位未依法履行安全生產職責
建設單位順德宏鉅科技產業發展有限公司沒有組織設計單位在設計文件中列出危大工程清單,也沒有要求施工單位完善危大工程清單,并明確相應的安全管理措施[];巡查檢查工作不細致、不認真,沒有發現8號樓屋面構造梁模板支撐體系屬于危大工程,沒有發現模板支撐體系存在重大安全隱患[];對施工、監理單位安全生產工作統一協調、管理不力[];對施工單位項目經理長期不在崗,安全管理混亂等問題置若罔聞,對監理單位監理工作流于形式缺乏監督管理。
5.審圖單位把關不嚴
審圖單位廣東建同工程技術咨詢有限公司順德分公司對設計文件沒有認真進行審查,對施工圖紙未標明涉及危大工程部位和環節的情況沒有提出審查意見,審圖過程中也沒有發現屋面構造梁施工涉及危大工程[],沒有發現屋面構架柱配筋設計不滿足正常使用及抗震設計受力要求。
6.行業主管部門履職不到位
順德區住房城鄉建設和水利局未依法履職。[]對施工單位日常監督檢查流于形式,對施工單位項目經理長期不在崗、安全管理混亂的情況監管不到位,對安全生產檔案資料弄虛作假現象失察[][];河源龍川“5·23”較大事故發生后,雖然根據省、市有關文件要求[],迅速制定了《佛山市順德區住房城鄉建設和水利局關于腳手架及模板支撐專項檢查的緊急通知》,但年中專項檢查沒有認真結合該通知精神落實重大隱患檢查,專項檢查流于形式,沒有檢查模板支撐等重點內容的情況下在檢查表中全部勾記“已檢查”,沒有發現8號樓屋面構造梁模板支撐體系存在重大安全隱患。
7.屬地有關協調機構日常服務管理不到位
順德高新技術產業開發區管理委員會為更好服務企業,主動承擔包括涉事工地在內的管委會轄區范圍內的項目巡查檢查,但檢查工作不到位,聘請的專家不具備相應資質能力,對檢查發現的安全隱患沒有函告行業主管部門,沒有督促企業及時消除安全隱患。
(三)事故性質
經調查認定,順德區“6·27”較大坍塌事故是一起生產安全責任事故。
四、對事故相關責任人員和責任單位的處理建議
(一)建議追究刑事責任人員(2人)
1.常某輝,男,漢族,1985年12月出生,群眾,高中文化程度,名義上是大城公司涉事工地項目經理助理,但實際上負責涉事工地的日常施工管理工作。常漢輝不具備安全管理能力,無相關執業資格及職稱證書[],涉事工地安全管理混亂,安全管理機構與實際不符[],專職安全管理人員職責不明,工作隨意[];沒有針對屋面構造梁模板工程編制專項施工方案[];隱患排查制度未落實,檢查流于形式,沒有發現8號樓屋面構造梁模板支撐體系存在重大安全隱患并消除[];屋面構造梁模板工程驗收程序流于形式,驗收記錄弄虛作假[];施工前,未對有關安全施工的技術要求作出詳細說明[],沒有進行方案交底,沒有進行技術交底[];未對從業人員進行安全生產教育和培訓,教育培訓檔案資料造假[];施工方案審批表、施工日志等檔案資料弄虛作假。常某輝對事故負有責任,因涉嫌重大責任事故罪,已于2020年7月 15日被公安機關立案偵查,建議追究其刑事責任。
2.劉某力,男,漢族,1964年5月出生,中共黨員,建友公司監理部經理,涉事工地總監理工程師。對施工單位項目經理長期不在崗[]、安全管理混亂[]、安全生產資料檔案弄虛作假[]等情況放任不管;對工程設計文件不熟悉[];沒有發現并督促施工單位在8號樓屋面構造梁施工前編制危大工程專項施工方案[];沒有認真審查施工組織設計中的安全技術措施是否符合工程建設強制性標準[];沒有結合8號樓屋面構造梁模板支撐體系危大工程編制監理實施細則,沒有對該危大工程施工實施專項巡視檢查[];日常巡查沒有發現8號樓屋面構造梁模板支撐體系存在重大安全隱患并消除[],監理形同虛設。對事故發生負有重大責任,建議追究其刑事責任。
(二)建議立案偵查人員(2人)
1.林某元,男,漢族,1980年月出生,群眾,大城公司涉事工地項目經理。長期不在崗,沒有依法履行安全生產有關職責[],對事故發生負有責任。建議公安機關對其涉嫌刑事犯罪行為立案偵查。待其司法程序終結后,由佛山市住房和城鄉建設局依法處理其行政違法責任[]。
2.吳某文,男,漢族,1967年10月出生,中共黨員,大城公司涉事工地項目技術負責人。未針對8號樓屋面構造梁模板支撐體系編制危大工程專項施工方案[],事后弄虛作假編造專項施工方案應對調查;未按要求組織模板工程驗收[];施工前,沒有進行方案交底[],對事故發生負有責任。建議公安機關對其涉嫌刑事犯罪行為立案偵查。待其司法程序終結后,由佛山市住房和城鄉建設局依法處理其行政違法責任。
(三)建議給予黨紀處分和責任追究人員(10人)
1.順德區住房城鄉建設和水利局負有相關責任人員(7人)
(1)霍某華,男,漢族,1972年9月出生,中共黨員,現任順德區住房城鄉建設和水利局黨組書記、局長,負責全面工作;其不正確履行職責,對建筑行業領域管理不到位,對業務科室未認真履職失察。其對此負有重要領導責任,根據《中國共產黨紀律檢查機關監督執紀工作規則》第三十條第二項之規定[]建議對其批評教育。
(2)王某翔,男,漢族,1968年2月出生,中共黨員,時任順德區住房城鄉建設和水利局黨組成員、副局長,分管建筑安全監督科,現任佛山市住房和城鄉建設局建設工程消防監管科科長。其任順德區住房城鄉建設和水利局黨組成員、副局長期間,不正確履行職責,對分管領域的工作管理不到位,對分管的科室未認真落實日常監督管理工作、專項檢查工作失察。其對此負有主要領導責任,根據《中國共產黨紀律檢查機關監督執紀工作規則》第三十條第二項之規定建議予以誡勉。
(3)左某志,男,漢族,1971年7月出生,中共黨員,現任順德區住房城鄉建設和水利局建筑安全監督科科長,主持科室全面日常管理工作,統籌安監1組(安監1組負責杏壇片區,含涉事工程工地)施工安全監督工作。其不正確履行職責,對安監1組人員管理不嚴格,對他們的日常檢查工作流于形式失察;對專項檢查工作部署不周全,不細致,對專項小組未認真落實重點檢查內容失察。其對此負有直接責任,根據《中國共產黨紀律處分條例》第三十七條[]、第一百二十一條[]之規定,建議給予黨內警告處分。
(4)胡某佳,男,漢族,1968年1月出生,中共黨員,現任順德區住房城鄉建設和水利局建筑安全監督科四級主任科員、安監1組組長,負責對杏壇片區建筑施工安全進行日常監督檢查。其不正確履行職責,帶隊對涉事工地日常監督檢查流于形式,對涉事工地施工圖紙不熟悉,對設計文件發生變更后不知情;未對施工單位、監理單位履職情況進行有效監督。其對此負有直接責任,根據《中國共產黨紀律處分條例》第三十七條、第一百二十一條、第一百二十二條[]之規定,建議給予黨內嚴重警告處分。
(5)黎某坤,男,漢族,1962年7月出生,中共黨員,順德區住房城鄉建設和水利局建筑安全監督科四級主任科員、安監1組組員,根據組長胡永佳安排對杏壇片區建筑施工安全進行日常監督檢查。其不正確履行職責,對涉事工地日常監督檢查流于形式,對涉事工地施工圖紙不熟悉,對設計文件發生變更后不知情;未對施工單位、監理單位履職情況進行有效監督。其對此負有直接責任,根據《中國共產黨紀律處分條例》第三十七條、第一百二十一條、第一百二十二條之規定,建議給予黨內警告處分。
(6)陳某勛,男,漢族,1979年6月出生,群眾,順德區住房城鄉建設和水利局建筑安全監督科二級科員,安監1組組員,根據組長胡永佳安排對杏壇片區建筑施工安全進行日常監督檢查。其不正確履行職責,對涉事工地日常監督檢查流于形式,對涉事工地施工圖紙不熟悉,對設計文件發生變更后不知情;未對施工單位、監理單位履職情況進行有效監督。其對此負有直接責任,根據《行政機關公務員處分條例》第二十條[]之規定,建議給予政務記過處分。
(7)陳某求,男,漢族,1978年5月出生,群眾,順德區住房城鄉建設和水利局建筑安全監督科政府雇員,2020年6月17日對涉事工地開展專項檢查時擔任小組組長。其不正確履行職責,對涉事工地現場施工情況不了解,現場檢查隨意;沒有按照專項檢查的重點內容對施工現場的模板支撐進行全面檢查,沒有發現8號樓屋面構造梁模板支撐體系這一重大安全隱患;對安全生產檔案資料檢查不細致、不認真,沒有發現弄虛作假的現象。其對此負有直接責任,建議對其批評教育,2020年年度考核不得評為優秀。
2.順德高新技術產業開發區管理委員會相關人員(3人)
(1)張某永,男,漢族,1976年2月出生,中共黨員,2016年3月任順德高新技術產業開發區管理委員會副主任,分管用地管理局。其不正確履行職責,沒有指導用地管理局建立完善有效的協調和監督工作機制,使監督檢查工作流于形式。其對此負有重要領導責任,根據《中國共產黨紀律檢查機關監督執紀工作規則》第三十條第二項之規定,建議對其批評教育。
(2)譚某毅,男,漢族,1979年8月出生,中共黨員,現任順德高新技術產業開發區管理委員會用地管理局局長(事業編制),用地管理局負責對高新區范圍內非財政性投資的企業、在建工地進行協調和監督。其不正確履行職責,對工程項目進行協調和監督的工作機制不完善,監督檢查工作流于形式:聘請的日常監督檢查的專家不具備相應資質能力,未將監督檢查發現的在建工地安全隱患問題移交相關職能部門。其對此負有主要領導責任,根據《中國共產黨紀律檢查機關監督執紀工作規則》第三十條第二項之規定,建議予以誡勉。
(3)周某,男,漢族,1981年12月出生,中共黨員,現任順德高新技術產業開發區管理委員會用地管理局四級調研員,主要負責對高新區范圍內的企業、在建工地進行監督檢查。其不正確履行職責,監督檢查工作流于形式,未將監督檢查發現的在建工地安全隱患問題移交相關職能部門;弄虛作假,向事故調查組提交資料之前,授意他人和參與在相關安全檢查材料上虛假簽名,應對調查。其對此負有直接責任,根據《中國共產黨紀律處分條例》第三十七條、第一百二十二條之規定,建議給予黨內警告處分。
3.其他責任人員(1人)
何某華,男,漢族,1965年4月出生,群眾,建筑領域專家,參加2020年6月17日對涉事工地開展專項檢查。其現場檢查隨意,沒有按照專項檢查的重點內容對施工現場的模板支撐進行全面檢查,沒有發現8號樓屋面構造梁模板支撐體系這一重大安全隱患。其對此負有直接責任,建議行業主管部門對其批評教育。
(四)對有關責任單位及人員的處理建議
1.廣東大城建設集團有限公司對事故負有責任,建議佛山市應急管理局依據《中華人民共和國安全生產法》、《生產安全事故報告和調查處理條例》(國務院令第493號)等有關法律法規規定,對大城公司[]及其主要負責人黃立軍(總經理,主持公司全面工作)實施行政處罰[],并按有關規定將該公司及黃某軍納入全國安全生產失信聯合懲戒管理[];對大城公司常務副總經理兼珠三角片區公司總經理、佛山分公司經理齊某實施行政處罰[]。
2.廣東建友工程建設監理有限公司對事故負有責任,建議佛山市應急管理局依據《中華人民共和國安全生產法》、《生產安全事故報告和調查處理條例》(國務院令第493號)等法律法規有關規定,對建友公司[]及其主要負責人黃某強(法定代表人、總經理,主持公司全面工作)實施行政處罰[],并按有關規定將該公司及黃某強納入全國安全生產失信聯合懲戒管理。[]
3.深圳機械院建筑設計有限公司對事故發生負有責任,建議佛山市應急管理局依據《中華人民共和國安全生產法》、《生產安全事故報告和調查處理條例》(國務院令第493號)等法律法規有關規定,對深圳機械院[]及其主要負責人王某禮(法定代表人兼總經理)[]實施行政處罰,并按有關規定將該公司及王某禮納入全國安全生產失信聯合懲戒管理[]。
4.佛山順德宏鉅科技產業發展有限公司未依法履行安全生產職責,建議佛山市應急管理局依據《中華人民共和國安全生產法》、《生產安全事故報告和調查處理條例》(國務院令第493號)等法律法規有關規定,對宏鉅公司[]及其主要負責人李某杰(法定代表人、總經理,主持公司全面工作)[]實施行政處罰。
(五)其他建議
1.責令順德區人民政府向佛山市人民政府作深刻書面檢查,認真總結和吸取事故教訓,進一步加強和改進安全生產工作,杜絕同類事故發生。
2.建議佛山市住房和城鄉建設局根據《房屋建筑和市政基礎設施工程施工圖設計文件審查管理辦法》(中華人民共和國住房和城鄉建設部令第46號)對審圖單位廣東建同工程技術咨詢有限公司順德分公司審圖把關不嚴的情況作出處理。[]
五、事故的主要教訓
(一)參建各方重生產輕安全,安全管理缺失缺位
設計單位未標注危大工程,未提出技術交代,甚至設計的屋面構造梁、柱不滿足正常使用及抗震設計受力要求;審圖單位把關不嚴,沒有發現上述嚴重問題;建設單位未依規定完善危大工程監管,對施工、監理各方違法和失職行為放任不管;監理形同虛設;施工方嚴重違反安全生產法律法規。在河源“5·23”事故之后,省市區多次提出防范遏制事故要求的情況下,參建各方依然置若罔聞,沒有引起警醒,沒有舉一反三吸取事故教訓,種種不負責任的行為、職責的層層失守,使工作漏洞釀成重大隱患,重大隱患最終釀成了嚴重的事故。反映參建各方沒有牢固樹立安全發展理念,紅線意識淡薄,底線思維缺失。
(二)施工團隊無知無能,脫離科學蠻做盲干
施工單位嚴重違反安全生產法律法規規定,安全管理機構與實際不符,安全管理混亂,項目經理長期不在崗,項目實際負責人只有高中未畢業且不具備任何相應執業資格和管理能力,安全管理工作由小學畢業且不具備相應安全管理能力的人員負責統籌,現場專職安全員職責不明。對危大工程沒有編制專項施工方案,隱患排查制度未落實,重大安全隱患未得到消除。施工前沒有方案交底、沒有技術交底,對施工人員沒有教育培訓。建筑施工本是技術要求極高、施工危險性極強的行業領域,但施工方配置的人員明顯沒有與工作崗位相匹配的知識和能力,違法違規、罔顧實際、脫離科學、違反規程、不負責任,最終害己害人。
(三)危大工程失管漏管,隱患排查治理嚴重不到位
8號樓屋面構造梁施工涉及危大工程,但設計單位沒有在設計文件中注明,沒有提出保障工程施工安全的意見,未進行設計交底,未向建設單位、施工單位、監理單位作出特別說明。建設單位沒有組織設計單位列出危大工程清單,沒有要求施工單位完善危大工程清單并明確安全管理措施;日常巡查檢查中,沒有發現屋面構造梁模板支撐體系屬于危大工程并存在重大安全隱患。監理單位對工程設計文件不熟悉,不知道8號樓屋面構造梁施工涉及危大工程;沒有發現并督促施工單位在8號樓屋面構造梁施工前編制危大工程專項施工方案。施工單位對危大工程缺乏管理意識,沒有辨識8號樓屋面構造梁施工涉及危大工程并編審專項施工方案,在日常檢查中,沒有發現8屋面構造梁模板支撐體系存在重大安全隱患并及時消除。反映參建各方對危大工程認知不足,危大工程被當作一般工程對待;管理混亂,放任重大安全隱患存在。屬于危大工程的8號樓屋面構造梁支撐體系始終處于失管狀態,隱患未能得到及時消除帶來嚴重后果。
(四)監管機制不完善,監管部門職責未有效落實
8號樓屋面構造梁屬于變更項目,監管部門在變更許可前未形成有效的實質審查機制,導致設計、審圖漏洞未能及時發現;在許可后,未形成有效的通告機制,導致監管人員未能及時掌握了解工地變更情況,一定程度上形成了后續監管的漏洞。此外,行業主管部門對涉事工地日常監督檢查流于形式,負責該片區的監管小組對涉事工地檢查了10次,沒有一次下達整改指令,對施工單位項目經理長期不在崗、安全管理混亂、檔案資料弄虛作假等現象失管失察。專項檢查對計劃中的檢查模板支撐體系等重點內容只是抽查,工作不到位,流于形式。
六、事故防范措施建議
(一)牢固樹立安全發展理念
各級人民政府要堅持以人民為中心的發展理念,貫徹落實習近平總書記關于安全生產的重要指示精神,進一步健全完善“黨政同責、一崗雙責、齊抓共管、失職追責”的安全生產責任制,夯實安全生產“三個必須”,厘清、明確各級各部門安全生產職責,建立科學合理的考核問責機制,確保安全生產紅線不可觸碰。順德區人民政府務必舉一反三,深刻吸取事故教訓,深入開展事故警示教育,定期研判分析安全生產形勢,真正把安全生產納入經濟社會發展總體布局,整體謀劃、推進、落實。順德區住房城鄉建設和水利局要結合安全生產專項整治三年行動、七大行業專項整治工作,狠抓建筑施工領域專項整治,對照“一圖兩清單”把方案和措施落細落實落具體;要全面深入排查工程建設領域存在的安全生產多發、共性問題,通過行業約談通報、誠信加扣分、聯合懲戒、強化執法力度等實招硬招提升企業整治重大隱患的自覺性。
(二)嚴格落實企業安全生產主體責任
我市廣大建筑施工企業,特別是事故工程參建各方要深入學習貫徹習近平總書記關于安全生產的重要論述,反思事故教訓,進一步提高認識,牢固樹立安全第一、生命至上的理念,強化紅線意識和底線思維,充分認識建筑行業高風險性,依法依規履行安全生產主體責任,切實增強安全風險意識,嚴格落實安全生產“一線三排”[]工作機制。佛山順德宏鉅科技產業發展有限公司要進一步規范各項承發包行為,加強風險辨識工作,依法依規履行告知備案職責和交底工作。廣東大城建設集團有限公司要加強施工現場安全管理,嚴格落實企業負責人、項目負責人現場帶班制度,認真遵守施工規程和技術規范,全面實施全員教育制度,加大風險管控和隱患排查治理,將隱患當事故對待,要實現對隱患發現、確認、整改、驗收、公示全過程閉環管理。廣東建友工程建設監理有限公司要嚴格履行安全監理職責,配備齊全具有相應從業資格的監理人員,編制有針對性、可操作性的監理規劃和細則,加強巡視和旁站監理,加強對施工過程重點部位和薄弱環節的管理和監控,對監理過程中發現的嚴重安全隱患和問題,要立即責令施工單位整改并復查整改情況,對拒不整改的,要及時向行業主管部門報告。深圳機械院建筑設計有限公司、廣東建同工程技術咨詢有限公司順德分公司等有關單位要嚴格履行職責,加強和完善審核復核機制,堵塞工作漏洞。
(三)切實加強危大工程管理
我市廣大建筑施工企業,特別是事故工程參建各方,要認真組織學習《危險性較大的分部分項工程安全管理規定》,進一步加強涉及危大工程的安全管控。佛山順德宏鉅科技產業發展有限公司作為建設單位應當完善危大工程清單及其安全管理措施,項目發生變更后必須重新組織參建單位會審、辨識危大工程和重大危險源,并要求施工單位嚴格按照危大工程清單及其相應的安全管理措施進行施工。廣東大城建設集團有限公司作為施工單位在危大工程施工前,要科學編制專項施工方案,并嚴格審核、論證;要完善危大工程清單審查工作機制、施工現場危大工程公告和警示機制,不折不扣落實方案交底和技術交底工作。廣東建友工程建設監理有限公司作為監理單位應當將危大工程列入監理規劃和監理實施細則,要針對工程特點、周邊環境和施工工藝,制定安全監理工作流程、方法和措施,并監督施工單位做到“不安全不施工、不科學不施工”。
(四)優化完善監管工作機制
順德區住房城鄉建設和水利局要吸取河源龍川“5·23”事故及本次事故教訓,結合安全生產專項整治三年行動、七大行業專項整治工作,狠抓建筑施工領域專項整治,對照“一圖兩清單”把方案和措施落細落實落具體;要進一步完善工程項目許可前審查和許可后通告工作機制,實現許可和監管環環相扣,無縫對接,堵塞漏洞。全市各級住建管理部門要正確理解簡政放權的含義,正確處理簡政放權與安全生產的關系,明確任何流程簡化的前提是對安全生產的保障,絕不能因簡政放權對安全生產造成影響。要進一步強化日常監管,加強安全技術措施及派駐施工現場管理人員的標后檢查,對現場作業人員與報建人員不一致的要嚴肅查處;要落實各方提交危大工程清單及相關的專項施工方案的制定,把危大工程作為日常監管、安全巡查的重點,加大抽查頻次和力度,確保施工現場安全生產管理體系和質量技術安全體系落實到位;要加強行業信用管理,對設計、勘察、建設、施工、監理、審圖等單位違反工作守則、違反法律法規的行為堅決予以整治并落實信用懲戒。
