2020年2月23日01時20分許,深圳市寶安區航城街道三圍社區雅居苑統建樓東側一樓臨街商鋪“青藏手工酸奶店”發生一起火災事故,過火面積40平方米,造成4人死亡,火災直接經濟損失117.82萬元人民幣。


在我國爆發新冠肺炎疫情后,2020年1月23日,廣東省啟動突發公共衛生事件一級響應,疫情防控相關工作成為社會各界的工作重心。在此特殊時期,企業尚未全面復工復產的情況下,這起“三小”場所[《小檔口、小作坊、小娛樂場所消防安全整治技術要求》(廣東省地方標準DB44/T 1591-2015),“三小”場所:小檔口、小作坊、小娛樂場所。小檔口包括經營面積不大于300平方米的具有銷售、服務性質的商店、餐飲服務單位、汽車摩托車修理店、洗衣店、電器維修店、美容美發店(院)等。]亡人火災事故,引起各級領導的高度重視。市委書記王偉中、市長陳如桂分別作出批示,要求迅速查清起火原因,穩妥處置,在疫情防控和復工復產任務繁重的情況下,深入排查安全隱患,強化消防安全管理,牢牢守住安全底線,確保我市安全形勢平穩和人民生命財產安全。劉慶生常務副市長第一時間組織召開全市警示會,并對事故調查工作提出相關要求。事故調查組按照“一案三查”和“實事求是、尊重科學”的原則,通過現場勘查、查閱資料、調查取證、技術鑒定和專家論證等,查明了事故發生的原因、經過、人員傷亡和直接經濟損失等情況,認定了事故性質和責任,提出了對相關責任單位和責任人員的處理建議。同時,針對事故原因及暴露出的問題,提出了事故防范措施建議。經調查:事發時,“青藏手工酸奶店”因疫情防控原因未營業,未從事與生產經營有關的活動,不具備構成生產安全事故的要素條件。調查組認定,深圳市寶安區航城街道“2·23”火災事故是一起較大火災事故。事故地點位于寶安區航城街道三圍社區雅居苑小區(圖1、圖2)東側A棟臨街首層1009商鋪,小區東面為寶安大道,西面為聯誠發聲光智慧產業園,南面為中立創軸承公司,北面為內環路,占地面積6500平方米,建筑面積78819.33平方米,綠化面積1300平方米,由商鋪和住宅一體組成,其中商鋪26間,住宅總戶數769戶。小區分為A、B兩棟共11個單元(1至8單元為A棟,9至11單元為B棟),停車位101個,A棟共有14層,1層為商鋪,2至14層為居民住宅;B棟共有14層,1層為停車場,2至14層為住宅。雅居苑小區原地塊屬深圳市聯發股份合作公司所有,于2014年建成目前的“雅居苑”統建樓。

深圳市扎宣類餐飲服務有限公司,店鋪名稱:青藏手工酸奶店(以下簡稱:酸奶店),屬于“三小”場所,統一社會信用代碼:91440300MA5FQMQ317,法定代表人:馬金花,公司類型:有限責任公司(自然人獨資),成立日期:2019年8月8日,住所:深圳市寶安區航城街道三圍社區雅居苑A棟1009,經營范圍:飲品制作與銷售、小吃制售(圖3、圖4)。

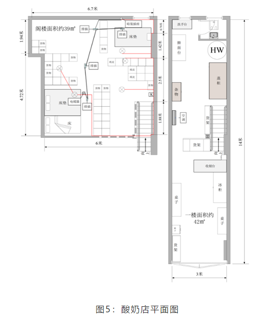
酸奶店首層東西長14米,南北寬3米,層高4.1米,面積42平方米;距東墻7.5米處搭建一鋼筋混凝土結構閣樓,為不規則多邊形狀,東西長6.66米,南北寬6.5米,閣樓高1.7米,面積約40平方米;距東墻7.56米處,沿著北墻東西向設有一條長3.4米、寬0.85米樓梯通往閣樓(圖5)。

雅居苑小區A棟1009號商鋪,為小產權房性質,商鋪業主為王福清(男,59歲,漢族,福建三明人)。王福清于2019年3月購買1009號商鋪后,將該商鋪出租給陳鎮偉個人作為西點蛋糕店使用(店鋪名:980服務生),同時王福清請施工方李辛圓負責店鋪的裝修及閣樓搭建,李辛圓請包工頭潘清國負責具體實施裝修工作;施工前,李辛圓與陳鎮偉向航城街道三圍社區工作站進行了零星工程備案登記。2019年7月陳鎮偉退租。2019年8月3日,業主王福清與馬金花簽訂了《商鋪租賃合同》(未備案),租期:2019年8月10日至2024年8月9日。深圳市雅居順物業管理有限責任公司(以下簡稱“雅居順物業公司”),統一社會信用代碼:91440300349795248L,法定代表人:余兆源,類型:有限責任公司,成立日期:2015年8月10日,營業期限:2015年8月10日至無固定期限,注冊地址:深圳市寶安區西鄉街道三圍統建樓雅居苑4單元205室,經營范圍:物業管理,自由物業租賃等。雅居順物業公司成立后,進駐雅居苑小區負責雅居苑小區的物業管理服務。雅居苑小區消防控制室與地下車庫收費崗亭合設。物業公司的日常管理由物業主管馬林負責。深圳市成華騰達實業有限公司(以下簡稱“成華騰達公司”),統一社會信用代碼:914403007663905082,法定代表人張喜成,類型:有限責任公司,成立日期:2004年9月20日,注冊地址:深圳市寶安區西鄉街道固戍華萬工業園B棟一樓之二,經營范圍:物聯網云軟件、云平臺的技術開發及技術服務等。該公司2017年4月份開始研發用電安全動態監控系統,2018年8月份平臺搭建成功,2018年12月8日中標寶安區用電安全動態監控系統預選供應商。2019年3月13日,與雅居苑1009號商鋪(店鋪名:980服務生,客戶:陳鎮偉)簽訂了《寶安區用電安全動態監控系統服務合同》并安裝了組合式電氣火災監控探測器(獨立式),主要對配電箱內剩余電流和溫度進行監測。商鋪內組合式電氣火災監控探測器將剩余電流和溫度數據信息、報警、故障及設備狀態信息上傳至成華騰達公司的用電安全動態監控系統平臺。事發前,酸奶店未復工營業,一直處于關門狀態。2019年8月20日至2020年2月19日,馬金花、馬長龍、馬學良、馬婕夢共同租住在三圍西路9號公寓602室。2020年2月19日,馬金花等4人辦理出租屋退租手續,當天09時40分許(圖6),馬長龍、馬金花等自行駕駛小車將出租屋的行李分三次轉運到酸奶店內(圖7)。2月19日13時57分搬家結束,至2月23日凌晨01時20分事發時,馬長龍、馬金花等4人一直在酸奶店未出門,搬家用的小車一直停在商鋪門口。22日18時27分,馬金花母親和哥哥來店探望,21時32分,其母親和哥哥離開酸奶店。

23日01時46分許,成華騰達公司的智慧用電動態監控系統平臺在巡查時,發現酸奶店內安裝的組合式電氣火災監控探測器斷路離線,但僅顯示離線狀態,未將離線信息推送給相關人員,且當時該公司監控系統平臺無人值班值守。23日01時57分09秒,雅居苑小區消防控制室火災報警系統主機顯示1009號商鋪(酸奶店)感煙探測器動作告警,但未發出蜂鳴聲預警(蜂鳴器此前已被人為拔掉);23日01時59分40秒,監控顯示臨街商鋪開始飄散白煙(圖8);02時13分09秒,酸奶店及其隔壁的“宏源地產”等商鋪的廣告牌均冒出大量白煙;02時13分24秒,物業保安員紀枝鑫第一個發現店鋪冒煙(圖9),隨即打電話通知“宏源地產”店主;02時20分01秒,物業保安班長鄺火秋發現店鋪冒煙,于02時25分44秒提著干粉滅火器到場,對“宏源地產”商鋪破門查找火點;“宏源地產”店主鄧某從沙井街道趕到現場查看情況,發現不是自己商鋪著火,于02時56分撥打119電話進行報警。從01時46分成華騰達公司“用電動態監控系統軟件平臺”接收酸奶店內“組合式電氣火災監控探測器”離線信息,至02時56分“宏源地產”店主鄧某撥打火警電話,期間出現1小時10分的報警空檔期,現場報警時間嚴重滯后。

1.接警情況:2月23日02時56分許,深圳市119消防指揮中心接到報警稱:位于寶安區航城街道雅居苑小區一樓臨街奶茶店(酸奶店)冒煙。02時59分,西鄉消防救援站值班室接到支隊指揮中心調度命令,立即出動西鄉消防救援站及下屬寶安區第八專職消防隊共4輛消防車、24名消防指戰員趕往現場。2.撲救經過:03時08分許,寶安區第八專職消防隊首先到達現場,立即進行火情偵察,發現酸奶店和其相鄰的“宏源地產”商鋪廣告牌均有濃煙,商鋪大門反鎖,未發現明火。03時14分,西鄉消防站到場,指揮員迅速組織隊員對廣告牌進行破拆并出水排煙降溫,隨后對相關商鋪卷簾門進行破拆,利用紅外測溫儀探測火源,發現著火部位為酸奶店,立即組織實施內攻搜救和滅火。04時08分明火被基本撲滅,04時53分殘火及陰燃堆垛被清理完畢。隨后,消防人員對火場進行排煙降溫全面清理,在火場深入清理過程中,先后在酸奶店二層閣樓發現四名遇難者(一名中年男性、兩名中年女性、一名女嬰)。07時10分許轄區公安派出所到場,07時20分許120醫護力量到場?,F場過火面積約40平方米,主要燃燒物為紙皮、床墊、電器等。事發當日上午,廣東省消防救援總隊羅云慶副總隊長帶領火調技術團隊到達現場,協調市公安、應急管理、消防救援等部門及時開展調查工作。市委、市政府高度重視,立即啟動應急響應預案。王偉中書記、陳如桂市長、劉慶生常務副市長接到報告后立即作出批示。市政府副秘書長王剛、市消防救援支隊張小宏支隊長、市應急管理局巡視員李頻及時到場指揮調度,聽取有關情況匯報,對后續處置等相關工作提出具體要求。寶安區姚任書記、郭子平區長、蔡英權常務副區長等領導迅速到場開展應急處置工作。當日上午,蔡英權常務副區長組織寶安區各街道主要負責人召開現場警示會,要求深刻吸取事故教訓,立即開展全面排查,嚴防“三小”場所違規住人;區政府迅速成立了事故處置善后領導小組,并設立事故調查配合小組和疫情防控、安全檢查排查、善后處置等多個專項小組,由相應的區領導擔任專項小組組長。區政府善后領導小組每天召開碰頭會,研究措施,穩妥推進事故善后處置,指導航城街道與區統戰、宣傳、公安等部門合力施策,通過情、理、法的結合,在5天時間內穩妥完成善后處置相關工作。各級領導和相關部門對事故應急救援和善后處置等工作高度重視,消防救援部門接處警響應迅速,現場處置得當,救援指揮和應急處置工作符合程序,相關環節緊密銜接,信息報送流轉及時。1.馬金花,女,回族,33歲,青海省大通回族土族自治縣人,身份證號碼:6301211987010876651,酸奶店店主。2.馬長龍,男,回族,46歲,青海省湟中縣人,身份證號碼:632124197404014757。3.馬學良,女,回族,32歲,青海省興海縣人,身份證號碼:632524198809064505,馬金花朋友兼酸奶店合伙人。4.馬婕夢,女,回族,2個月,出生證明編碼:T442080696,馬長龍與馬金花之女。根據廣東省深圳市寶安區公安司法鑒定中心鑒定,上述四人死亡原因為:火場窒息死亡。依據永拓會計師事務所(特殊普通合伙)深圳分所出具的《2020年2月23日火災事故財產損失價值認證及死者死亡善后處理的費用情況報告》,核定“寶安區航城街道“2·23”較大火災事故”直接經濟損失117.82萬元人民幣。事故發生后,寶安區姚任書記親自指導,郭子平區長兩次召開善后領導小組專題會議,鄭新強常委兩次到航城街道指導、協調,蔡英權常務副區長全程指導善后處置工作,周學良常委始終關注事故處理工作動態。在寶安區善后處置領導小組的有力領導下,航城街道第一時間成立由街道黨工委書記為組長的善后處置工作小組,抽調街道綜治辦、社會事務辦、司法所、婦聯等部門主要負責人及業務骨干提前對接,制定多套可行性預案,周密安排處置流程,“多對一”開展善后工作。航城街道與區統戰、宣傳、公安等部門有序開展善后工作,開展遇難者家屬心理安撫和情緒疏導,及時化解各種矛盾,積極解決事故賠償協商和經濟損失評估等事宜,積極為遇難者家屬提供法律援助,協調雅居順物業公司及商鋪業主支付四名火災事故遇難者善后費用,協助死者家屬厘清相互之間的經濟關系,明確遺產和善后款項分配方案,促成三方家屬達成協議。在充分尊重民族宗教習慣的基礎上,善后工作得到妥善處置,最大限度地降低此次事故造成的影響,遇難者家屬情緒穩定,未出現影響社會穩定的情況。酸奶店為單層鋼筋混凝土建筑,局部搭建閣樓。酸奶店東側大門由一道鐵質卷閘門和一扇玻璃門組成,首層由東往西依次擺放有貨架、木桌、搟面臺、蒸柜、冷藏柜、收銀臺等用具、物品,均無過火痕跡(圖10),僅部分用具、物品有輕微煙熏痕跡,四周墻面和頂部有煙熏痕跡。首層西墻離地面1.69米,距南墻1.3米處安裝有一個配電箱,配電箱連接一組合式電氣火災監控探測器,配電箱內由南向北依次設有1個總開關及3個饋出開關,第1個饋出開關跳閘呈分閘斷開狀態(圖11),第2、第3個饋出開關呈合閘連通狀態。西墻分別設有兩扇規格為80cm×60cm的鋁合金窗,兩扇窗戶均為關閉狀態,窗戶玻璃完好,外部均加裝鋁合金防盜網,防盜網未見破損痕跡。

酸奶店閣樓四周墻面及頂部均有濃密煙熏痕跡,南北兩面墻的水泥批蕩被燒后大面積脫落(圖12);南北向的主梁批蕩被燒脫落程度呈現出東重西輕;東西向的次梁批蕩被燒脫落程度呈現出北重南輕。閣樓樓梯口的紙箱堆垛全部過火,紙箱被燒損、碳化程度呈現東重西輕、北重南輕和上重下輕的現象;閣樓樓梯南側護欄西端第一節被燒脫落,往東的其他護欄過火程度輕;樓梯南側擺放的嬰兒車塑料配件被燒損程度呈上重下輕;嬰兒車南側的塑料碗、包裝膜、包裝盒等物品堆垛全部過火,塑料碗堆垛受熱熔融形成向北的流淌痕跡,呈南高北低斜坡狀;閣樓東北角的嬰兒車坐板上部燒損嚴重,坐板下部較為完好(圖13);東南角的木床床架西北部被碳化程度嚴重,床單西北角有75cm×30cm區域被燒失,其它部位保持完整;沿南墻的鋁合金貨架僅北側受熱外凸彎曲變形,貨架上鋪的木質面板東北角有60cm×48cm范圍被燒失,鋁合金貨架北側緊貼擺放的紙箱被燒毀呈南高北低斜坡狀;鋁合金貨架與地鋪之間豎向疊放的木板及鋁制框架過火后,鋁制框架北側殘存高43cm,南側未被火燒,保持原高77cm,木板被燒北側殘存高20cm,南側高35cm,殘余部分呈南高北低斜坡狀(圖14、圖15);對閣樓地面清理水洗后,發現地面原鋪設的塑料地板革部分被燒毀,閣樓東北角樓梯口位置地板革燒失最嚴重。


閣樓西墻上離地面0.4m,距北墻1.7m處裝有一個暗裝插座,從暗裝插座饋出一路PVC穿管明敷電線,PVC塑料管、插座塑料外殼及插著的插頭均受熱熔融,插座上連接一個移動排插,該移動排插外接三個排插,其中兩個為串聯式,四個排插上均與各類用電設備相連接;PVC穿管明敷電線沿頂棚墻角鋪設,大部分過火后銅導線裸露。對閣樓東北角(距西墻2.6m至4.3m,距南墻4.8m至6m的區域)進行專項勘驗。北墻上有一煙熏、變色形成“V”字形痕跡(V字形最低點距西墻3.6m、離地面0.7m),V形痕跡底部為紙箱碳化殘??;對該處逐層清理,分別在距西墻4.017m、距北墻0.719m處和距北墻0.939m、距西墻3.977m處發現多段帶熔痕銅導線。事故調查小組技術組通過現場勘驗、調查詢問、視頻分析、物證提取、檢驗鑒定報告、法醫尸檢報告、用電安全動態監控數據分析、氣象報告分析等工作,事故原因認定如下:起火時間為2020年2月23日01時20分許。主要依據如下:(1)用電安全動態監控系統平臺顯示:2月23日01時20分18秒為1009號商鋪監控探測器最后一次發出數據信息的時間,01時46分系統巡檢時商鋪監控探測器已離線;(2)雅居苑小區消防控制室內的火災自動報警系統顯示:01時57分09秒,1009號商鋪內的感煙火災探測器發出火警信號;(3)雅居苑小區東側監控視頻頻顯示:01時59分40秒,1009號商鋪四周開始冒出白煙;(4)對火災第一發現人紀枝鑫、鄺火秋調查證實,23日02時許,他們最先發現1008號商鋪周邊冒白煙;(5)深圳市消防救援支隊指揮中心接警記錄顯示,該起火災最早報警的時間為02時56分52秒。起火部位為酸奶店閣樓東北角(距西墻2.6m至4.3m,距南墻4.8m至6m的區域)。主要依據如下:(1)酸奶店首層均未過火,墻面四周及頂棚僅有煙熏痕跡;(2)酸奶店閣樓全部過火,樓板南北向的主梁兩側水泥批蕩被燒脫落程度呈東重西輕;東西向的次梁兩側水泥批蕩被燒脫落程度呈北重南輕;(3)閣樓東南角的木床床架西北部碳化程度嚴重,床單西北角有75cm×30cm區域被燒失;(4)閣樓沿南墻擺放的鋁合金貨架北側受熱外凸彎曲變形,其他部位未變形,該貨架上的木板東北角60cm×48cm范圍被燒缺失;鋁合金貨架北側緊貼的紙箱被燒毀呈南高北低斜坡狀;鋁合金貨架與地鋪之間豎向疊放的木板及鋁制框架過火后,殘余部分呈南高北低斜坡狀;(5)閣樓地面原鋪設的塑料地板革東北角樓梯口區域被燒失最嚴重,其他部位塑料地板革基本保持完好;(6)閣樓北墻上有一煙熏、變色的“V”字形痕跡(V字形燃燒痕跡最低點距西墻3.6m、距地面0.7m),V字形底部的包裝紙箱被燒碳化嚴重。(1)排除人為放火引起火災的因素。據調查訪問、現場勘驗,查看監控錄像均證實:22日晚上至23日火災發生前,酸奶店無可疑人員逗留;現場無放火的痕跡特征;公安部門法醫尸檢報告及尸體血液檢測報告顯示,4名遇難者均為火場窒息死亡,尸表未見明顯的機械性損傷,心血中未檢測出酒精、鎮定類藥物和常見毒物成份;送檢物證未檢測出常見助燃劑成分;經深圳市公安局寶安分局排查未發現人為放火嫌疑,排除人為放火引起火災的因素。(2)排除雷擊引起火災的因素。深圳市氣象局《寶安區氣象監測報告》顯示,事故發生前后寶安區無雷擊、臺風等現象。(3)排除吸煙遺留火種引起火災的因素。對馬軍(馬金花哥哥)調查證實:居住閣樓人員均無吸煙習慣。對起火部位包裝紙箱堆垛勘查發現,上部的包裝紙箱燒毀嚴重,下部基本完好,現場未發現灰化坑等遺留火種起火痕跡特征。(4)認定起火原因:起火原因為酸奶店閣樓東北角電氣線路短路所致。主要依據如下:a.對酸奶店用電安全動態監控系統平臺數據分析顯示:2020年2月23日01時20分18秒,酸奶店首層安裝的組合式電氣火災監控探測器最后一次發出數據,探測器此前均正常工作;b.酸奶店商鋪配電箱內的插座配電回路開關和商鋪上一級的配電開關發生動作(均處于分閘斷開狀態),商鋪配電箱的其他開關未動作(處于合閘連通狀態),表明酸奶店的插座配電回路發生了短路故障;c.對閣樓東北角(距西墻2.6m至4.3m,距南墻4.8m至6m的區域)進行逐層清理,分別在距西墻4.017m、距北墻0.719m處和距西墻3.977m、距北墻0.939m處發現多段帶熔痕銅導線;d.現場勘查發現:閣樓東北角提取的帶熔痕銅導線引自閣樓西墻暗裝插座處;閣樓西墻暗裝插座與酸奶店商鋪首層配電箱內的插座配電回路相連;e.現場勘查發現:閣樓東北角樓梯口包裝紙箱殘骸堆垛上方敷設的電源線為閣樓的照明線路,由閣樓西墻暗裝插座引出;f.對馬軍(馬金花哥哥)調查證實:閣樓東北角樓梯口位置擺放有大量包裝紙箱等物品;g.現場提取物證經送廣東震華痕跡司法鑒定所鑒定,帶熔痕銅導線為一次短路作用形成。馬金花:酸奶店經營者(深圳市扎宣類餐飲服務有限公司法定代表人)。2020年2月19日,在企業尚未復工復產的背景下,馬金花等人搬進其經營的酸奶店(屬于“三小”場所)違規住宿,至事發時已連續居住三天。馬金花、馬長龍、馬學良消防安全意識淡薄,并未意識到“三小”場所違規住人的危險性或雖知道危險但心存僥幸。酸奶店閣樓使用大量紙皮、塑料等雜物充當隔擋,通過接駁插座等方式亂拉亂接電線,集中使用電熱毯、燒水壺、加熱器等大功率電器,導致火災負荷增大,火災風險升高?;馂陌l生時,店鋪的卷簾門、內層玻璃門均從內部上鎖,店鋪內西墻的兩個窗戶均處于關閉狀態,火災發生后室內煙氣和煙熱聚集。余兆源:雅居順物業公司法定代表人(消防安全責任人)。馬林:雅居順物業公司雅居苑小區物業管理處主任(消防安全實際管理人)。(1)消防安全管理制度缺失。未建立健全本單位的消防安全制度、消防安全操作規程,未明確消防安全責任。違反《中華人民共和國消防法》第十六條第一款第(一)項[ 《中華人民共和國消防法》第十六條第一款第(一)項:(一)落實消防安全責任制,制定本單位的消防安全制度、消防安全操作規程,制定滅火和應急疏散預案。]、《深圳經濟特區消防條例》第十五條第一款第(一)項[ 《深圳經濟特區消防條例》第十五條第一款第(一)項:住宅區物業服務企業在管理范圍內應當履行下列消防安全管理責任:(一)建立、健全消防安全制度,明確消防安全責任。]的規定。(2)未確保消防設施完好有效。雅居苑內部消防設施每月均存在較多故障和隱患,對維保公司提出的問題未及時進行整改,消防設施長期存在故障。違反《中華人民共和國消防法》第十六條第一款第(二)項[ 《中華人民共和國消防法》第十六條第一款第(二)項:機關、團體、企業、事業等單位應當履行下列消防安全職責:(二)按照國家標準、行業標準配置消防設施、器材,設置消防安全標志,并定期組織檢驗、維修,確保完好有效。]、《廣東省實施<中華人民共和國消防法>辦法》第十六條第一款第(二)項[ 《廣東省實施<中華人民共和國消防法>辦法》第十六條第一款第(二)項:物業服務企業在服務區域內應當履行下列消防安全責任:(二)負責管理、維護、保養公共消防設施和器材,確保公共消防設施和器材完好、有效。]、《深圳經濟特區消防條例》第十五條第一款第(四)項[ 《深圳經濟特區消防條例》第十五條第一款第(四)項:住宅區物業服務企業在管理范圍內應當履行下列消防安全管理責任:(四)管理、維護物業區域內的公共消防設施,保障消防器材以及消防安全標志完好有效。]的規定。(3)消防安全生產教育和培訓缺失。未組織開展消防安全教育培訓工作、消防演練,日常消防安全宣傳教育不到位;未制定有效的滅火和應急疏散預案,物業值班人員應對能力不足。違反《中華人民共和國消防法》第十六條第一款第(六)項[ 《中華人民共和國消防法》第十六條第一款第(六)項:機關、團體、企業、事業等單位應當履行下列消防安全職責:(六)組織進行有針對性的消防演練。]、《廣東省實施<中華人民共和國消防法>辦法》第十六條第一款第(三)項[ 《廣東省實施<中華人民共和國消防法>辦法》第十六條第一款第(三)項:物業服務企業在服務區域內應當履行下列消防安全責任:(三)制定滅火和應急疏散預案,定期組織有關人員參加消防安全培訓和進行消防演練。]、《深圳經濟特區消防條例》第十五條第一款第(五)項[ 《深圳經濟特區消防條例》第十五條第一款第(五)項:住宅區物業服務企業在管理范圍內應當履行下列消防安全管理責任:(五)開展消防安全宣傳教育,每年至少組織一次消防演練。]的規定。(4)消防控制室值班人員未保持兩人持證上崗。消防控制室所有值班人員均未通過消防行業特有工種職業技能鑒定并取得相關職業資格證書,只安排一名值班人員上崗。違反《建筑消防設施的維護管理》(GB25201-2010)第5.2條[ 《建筑消防設施的維護管理 》(GB25201-2010 )第5.2條:消防控制室值班時間和人員應符合以下要求:a) 實行每日24h值班制度,值班人員應通過消防行業特有工種職業技能鑒定,持有初級技能以上等級的職業資格證書。b) 每班工作時間應不大于8h,每班人員應不少于2人,值班人員對火災報警控制器進行日檢查、接班、交班時,應填寫《消防控制室值班記錄表》(見表A.1)的相關內容。值班期間每2h記錄一次消防控制室內消防設備的運行情況,及時記錄消防控制室內消防設備的火警或故障情況。c) 正常工作狀態下,不應將自動噴水滅火系統、防煙排煙系統和聯動控制的防火卷簾等防火分隔設施設置在手動控制狀態 ,其他消防設施及相關設備如設置在手動狀態時,應有在火災情況下迅速將手動控制轉換為自動控制的可靠措施。]的規定。(5)日常防火檢查、巡查流于形式。未定期組織開展防火檢查,未及時處理消防安全隱患。違反《中華人民共和國消防法》第十六條第一款第(五)項[ 《中華人民共和國消防法》第十六條第一款第(五)項:機關、團體、企業、事業等單位應當履行下列消防安全職責:(五)組織防火檢查,及時消除火災隱患。]、《深圳經濟特區消防條例》第十五條第一款第(二)項[ 《深圳經濟特區消防條例》第十五條第一款第(二)項:住宅區物業服務企業在管理范圍內應當履行下列消防安全管理責任:(二)定期開展防火檢查,消除火災隱患;發現消防違法行為的,及時報告公安機關消防機構或者公安派出所。]的規定。經事故調查認定,事發時,“青藏手工酸奶店”因疫情防控原因未營業,未從事與生產經營有關的活動,不具備構成生產安全事故的要素條件,深圳市寶安區航城街道“2·23”火災事故是一起較大火災事故。2.馬金花、馬長龍、馬學良安全意識淡薄,違規入住“三小”場所。1.酸奶店消防安全管理不到位,存在大量消防安全隱患。閣樓內違規用電,電線私接亂拉,存在移動排插串聯供電,埋下火災隱患;經營者在店鋪閣樓使用大量紙皮、塑料等雜物充當隔擋,現場火災荷載量較大,火災危險性高;火災發生時,店鋪首層出口處的卷簾門、內層玻璃門均從內部上鎖,店鋪內西墻的兩個窗戶均處于關閉狀態,導致火災發生后煙氣聚集,無法及時排出。2.雅居順物業公司消防管理不到位,在崗人員嚴重失職,應急處置能力低下。(1)消防安全管理制度缺失且組織管理混亂。雅居順物業管理公司未建立健全本單位的消防安全制度、消防安全操作規程,公司內部消防安全管理架構混亂,未明確消防安全責任,物業公司法人、物業主任及消防控制室值班人員對自身消防安全管理職責不清楚、不掌握,不具備應有的消防管理能力。(2)消防控制室值班人員長期無證上崗。雅居苑消防控制室所有值班人員,均未通過消防行業特有工種職業技能鑒定并取得相關職業資格證書,事故發生當晚,控制室也未能保持2名人員持證上崗。雅居順物業管理公司法人和主要負責人,明知此情況長期存在而未做出任何處理,依然違反相關安全管理規定,強令他人冒險作業和“帶病”上崗。(3)消防設施長期存在故障。消防維保公司每月向物業公司出具的消防維護保養報告中顯示,雅居苑內部消防設施每月均存在較多故障和隱患,但物業管理公司并未及時對存在的問題進行整改,僅在2019年10月進行了部分整改,但仍舊未保持火災自動報警系統等消防設施完好有效,直至事故發生時,該系統仍處于隱患故障狀態。經實地調查,小區消防控制室與監控室、停車場收費崗合用,設置不合理,且火災報警主機蜂鳴器接線被擅自拔出,喪失告警功能,致使值班人員未能第一時間發現火警。(4)消防安全生產教育和培訓缺失,應急處置能力低下。雅居順物業管理公司未組織物業員工、小區居民、商戶等開展消防安全教育培訓工作,未組織開展實地消防演練,日常消防安全宣傳教育不到位,致使火災發生時,物業值班人員應對能力不足,且發現火情后,全體物業值班人員在整個火災處置過程均未報警,實際報警人員為酸奶店相鄰店鋪“宏源地產”經營者鄧某,錯過滅火救援最佳時機,物管人員嚴重失職。(5)日常防火檢查、巡查流于形式。雅居順物業管理公司法定代表人余兆源作為消防安全責任人,未定期組織開展過防火檢查,未及時處理相關消防安全隱患。物業管理處主任馬林作為小區物業管理實際負責人,組織日常防火檢查、巡查不到位。馬金花等人消防安全意識淡薄,在疫情期間,尚未復工復產之時,違規搬入“三小”場所經營店鋪居住。酸奶店消防安全管理不到位,存在大量消防安全隱患。鑒于馬金花、馬長龍、馬學良已在火災事故中死亡,建議免于追究責任。(1)余兆源,雅居順物業公司法定代表人,是本單位消防安全責任人[ 《廣東省實施<中華人民共和國消防法>辦法》第十條第二款:單位的法定代表人或者主要負責人是單位消防安全責任人。合伙企業中對外代表合伙企業、執行合伙事務的合伙人或者全體合伙人是單位消防安全責任人。]。(2)馬林,雅居苑小區物業管理處主任,消防安全實際管理人。以上二人未落實本單位消防安全責任制和崗位消防安全責任制;未建立健全本單位的消防安全制度、消防安全操作規程;未按照國家標準、行業標準配置消防設施、器材,設置消防安全標志,并定期組織檢驗、維修,確保完好有效;未對建筑消防設施每年至少進行一次全面檢測,確保完好有效;未組織防火檢查,及時消除火災隱患;聘請無證人員管理消防控制室,每班未安排不少于2人值班,未對消防控制室崗位人員進行消防安全培訓。違反了《中華人民共和國消防法》第十六條第一款第(一)項[ 《中華人民共和國消防法》第十六條第一款第(一)項:機關、團體、企業、事業等單位應當履行下列消防安全職責:(一)落實消防安全責任制,制定本單位的消防安全制度、消防安全操作規程,制定滅火和應急疏散預案。]、《廣東省實施<中華人民共和國消防法>辦法》第十條第三款[ 《廣東省實施<中華人民共和國消防法>辦法》第十條第三款:單位應當落實逐級消防安全責任制和崗位消防安全責任制,明確逐級和崗位消防安全職責,確定各級、各崗位的消防安全責任人。]、第十八條[ 《廣東省實施<中華人民共和國消防法>辦法》第十八條:單位消防安全責任人應當履行下列消防安全責任:(一)組織制定、實施本單位消防工作規劃;(二)確保本單位為消防安全提供必要的經費和組織保障;(三)確定逐級消防安全責任,組織制定和落實消防安全制度、消防安全操作規程;(四)組織消防安全宣傳教育;(五)組織防火檢查,消除火災隱患,及時處理涉及消防安全的問題;(六)保證單位消防安全符合規定,使用合格的消防產品,完善消防設施;(七)支持配合公安消防隊、政府專職消防隊進行滅火救援應急演練;(八)發生火災時,及時組織人員疏散和撲救;(九)法律、法規規定的其他消防安全責任。]、第三十七條[ 《廣東省實施<中華人民共和國消防法>辦法》第三十七條:下列人員應當接受消防安全培訓:(一)單位的消防安全責任人、消防安全管理人員;(三)消防工程設計、施工、安裝、維修保養、監理人員和消防控制室的管理人員;(六)其他依法需要培訓的人員。]和《建筑消防設施的維護管理》(GB25201-2010)第4.2、5.2條[ 《建筑消防設施的維護管理》(GB25201-2010 )第4.2條:建筑物的產權單位或受其委托管理建筑消防設施的單位,應明確建筑消防設施的維護管理歸口部門、管理人員及其工作職責,建立建筑消防設施值班、巡查、檢測、維修、保養、建檔等制度,確保建筑消防設施正常運行。第5.2條:消防控制室值班時間和人員應符合以下要求:a) 實行每日24 h值班制度。值班人員應通過消防行業特有工種職業技能鑒定,持有初級技能以上等級的職業資格證書。b) 每班工作時間應不大于8 h,每班人員應不少于2人。值班人員對火災報警控制器進行日檢查、接班、交班時,應填寫《消防控制室值班記錄表》(見表A.1)的相關內容。值班期間每2h 記錄一次消防控制室內消防設備的運行情況,及時記錄消防控制室內消防設備的火警或故障情況。c) 正常工作狀態下,不應將自動噴水滅火系統、防煙排煙系統和聯動控制的防火卷簾等防火分隔設施設置在手動控制狀態。其他消防設施及其相關設備如設置在手動狀態時,應有在火災情況下迅速將手動控制轉換為自動控制的可靠措施。]的規定,觸犯了《中華人民共和國刑法》第一百三十四條第二款[ 《中華人民共和國刑法》第一百三十四條第二款:強令他人違章冒險作業,因而發生重大傷亡事故或者造成其他嚴重后果的,處五年以下有期徒刑或者拘役;情節特別惡劣的,處五年以上有期徒刑。],涉嫌強令違章冒險作業罪。(3)巫小朋,雅居苑小區消防控制室當日值班人員,長期無證上崗,未對消防控制室的火災報警控制器、消防設備的運行情況進行日檢查,消防控制室值班人員接到報警信號后,未按照規范程序進行處理,發現火災后未及時報警。違反了《建筑消防設施的維護管理》(GB25201-2010)第5.2、5.3條[ 《建筑消防設施的維護管理 》(GB25201-2010 )第5.3條:消防控制室值班人員接到報警信號后,應按下列程序進行處理:a) 接到火災報警信息后,應以最快方式確認。b) 確認屬于誤報時,查找誤報原因并填寫《建筑消防設施故障維修記錄表》(見表B.1)。c) 火災確認后,立即將火災報警聯動控制開關轉入自動狀態(處于自動狀態的除外),同時撥打“119”火警電話報警。d) 立即啟動單位內部滅火和應急疏散預案,同時報告單位消防安全責任人。單位消防安全責任人接到報告后應立即趕赴現場。]的規定,觸犯了《中華人民共和國刑法》第一百三十四條第一款[ 《中華人民共和國刑法》第一百三十四條第一款:在生產、作業中違反有關安全管理的規定,因而發生重大傷亡事故或者造成其他嚴重后果的,處三年以下有期徒刑或者拘役;情節特別惡劣的,處三年以上七年以下有期徒刑。],涉嫌重大責任事故罪。
公安機關目前已對余兆源、馬林、巫小朋3人采取強制措施,建議移交司法機關依法處理。
雅居順物業公司未落實消防安全主體責任,未確保消防設施完好有效,未及時消除火災隱患,未組織消防安全教育培訓,違反了《中華人民共和國消防法》第十六條[ 《中華人民共和國消防法》第十六條 機關、團體、企業、事業等單位應當履行下列消防安全職責:(一)落實消防安全責任制,制定本單位的消防安全制度、消防安全操作規程,制定滅火和應急疏散預案;(二)按照國家標準、行業標準配置消防設施、器材,設置消防安全標志,并定期組織檢驗、維修,確保完好有效;(三)對建筑消防設施每年至少進行一次全面檢測,確保完好有效,檢測記錄應當完整準確,存檔備查;(四)保障疏散通道、安全出口、消防車通道暢通,保證防火防煙分區、防火間距符合消防技術標準;(五)組織防火檢查,及時消除火災隱患;(六)組織進行有針對性的消防演練;(七)法律、法規規定的其他消防安全職責。單位的主要負責人是本單位的消防安全責任人。]規定,根據《中華人民共和國消防法》第六十條第一款[ 《中華人民共和國消防法》第六十條第一款:單位違反本法規定,有下列行為之一的,責令改正,處五千元以上五萬元以下罰款:(一)消防設施、器材或者消防安全標志的配置、設置不符合國家標準、行業標準,或者未保持完好有效的;(二)損壞、挪用或者擅自拆除、停用消防設施、器材的;(三)占用、堵塞、封閉疏散通道、安全出口或者有其他妨礙安全疏散行為的;(四)埋壓、圈占、遮擋消火栓或者占用防火間距的;(五)占用、堵塞、封閉消防車通道,妨礙消防車通行的;(六)人員密集場所在門窗上設置影響逃生和滅火救援的障礙物的;(七)對火災隱患經消防救援機構通知后不及時采取措施消除的。],建議寶安區有審批權、備案權、處罰權等相關部門會同航城街道辦依法依規對雅居順物業公司進行處理。本起事故雖然主要由馬金花等人違規入住“三小”場所、酸奶店消防安全主體責任不落實、雅居順物業公司消防管理不到位而引發,但經延伸調查,仍然暴露出以下問題:2019年3月購買1009號商鋪后,聘請施工方裝修,違法搭建閣樓,未對商鋪開展巡查檢查,對承租人進行消防安全宣傳和教育提醒不到位,其行為違反了《深圳市出租屋管理若干規定》(2008修訂)第十二條第三款[ 《深圳市出租屋管理若干規定》(2008修訂)第十二條第三款:出租屋業主或者管理人和承租人不得未經建設工程規劃許可或者違反建設工程規劃許可規定,擅自改變出租屋使用功能,擅自進行開(堵)外墻門窗、封閉陽臺、搭建閣樓、棚蓋或者在天臺上搭建建(構)筑物等行為。]、《廣東省實施<中華人民共和國消防法>辦法》第三十五條[ 《廣東省實施<中華人民共和國消防法>辦法》第三十五條:建筑物或者場所出租使用的,產權單位應當保證其提供的場所或者建筑物符合消防安全條件,與使用單位或者承包、承租單位簽訂消防安全責任書,以書面形式明確各方消防安全責任。]。建議由寶安區航城街道有關部門依法對該閣樓進行拆除。(二)成華騰達公司未落實24小時應急值守監測,未將離線數據信息推送給相關管理人員。根據成華騰達公司與事故商鋪簽訂的《用電安全動態監控系統服務合同》第二條、第四條[ 第二條:成華騰達公司為事故商鋪安裝組合式電氣火災監控探測器(獨立式),含3年維護管養費用、鋪材、人工安裝、24小時應急值守預警服務;第四條:安裝后系統監測到線路隱患,成華騰達公司通過電話、短信和APP推送通報給用戶,確屬用戶線路原因,用戶須自主進行線路整改。]約定,成華騰達公司應提供24小時應急值守預警服務,安裝后系統監測到線路隱患,應通過電話、短信和APP推送通報給用戶。根據《寶安區全面推廣用電安全動態監控系統安裝應用工作實施方案》附件3、附件5、附件7[ 附件3《寶安區用電安全動態監控系統施工安裝規范》二、現場施工(六)監控主機安裝3、在未設置遠程監控主機的場所,用電安全動態監控系統應將報警位置、報警類型及數據信息通過互聯網直接傳送到監控網頁,并通過手機短信或手機APP或微信公眾號同步送達相關管理人員;附件5《寶安區用電安全動態監控系統售后服務規范》二、服務計劃4、需設立遠程監測平臺24小時值班室和應急值班團隊,并配置固定售后服務電話(用標簽張貼在已安裝場所的明顯位置);附件7《寶安區用電安全動態監控系統平臺和信息安全相關要求》一、平臺功能“用電安全動態監測系統對用電設備的電流、電壓、溫度等數據以及環境溫度、煙感、可燃氣體濃度等數據進行監控。監測到隱患時,系統需通過遠程監控主機、電話語音、手機短信、手機APP或微信公眾號等渠道,將報警位置、報警類型和數據信息等通知到相關管理人員”。]的要求,成華騰達公司應當提供24小時值守預警服務,且系統監控平臺在接收到事故商鋪內組合式電氣火災監控探測器(獨立式)離線信息后,應當發揮系統平臺功能,將離線數據信息通過互聯網直接傳送到監控網頁,并通過手機短信或手機APP或微信公眾號同步送達相關管理人員。火災發生時,該公司系統監控平臺接收到事故商鋪內組合式電氣火災監控探測器(獨立式)離線信息,但監控平臺僅顯示離線狀態,該公司后臺處于無人值班狀態,未按照合同約定和《寶安區全面推廣用電安全動態監控系統安裝應用工作實施方案》提供24小時值守預警服務,未將離線數據信息通過互聯網直接傳送到監控網頁,并通過手機短信或手機APP或微信公眾號同步送達相關管理人員。錯過了提醒人員逃生和撲救初期火災的良機。“2·23”火災事發生后,事故調查組隨機抽查了該公司3月2日至3月7日的值班情況,發現其仍然未嚴格落實24小時應急值守。建議由寶安區相關部門按照《寶安區用電安全動態監控系統預選供應商管理辦法(試行)》等規定對成華騰達公司進行監督管理、專項整頓和責任追究。1.航城街道網格綜合管理中心(網格巡查大隊)隊伍建設不規范,對下屬中隊和基層動態管控力度欠缺。該中心未按《寶安區網格綜合巡查大隊、中隊內設機構及崗位設置工作指引》“三組一隊”的要求規范設置組織架構,內設小組存在職能不清的情況;研究部署重要工作較隨意,無相關記錄和佐證;未按照《深圳市消防安全委員會辦公室關于進一步做好疫情期間火災防控工作的通知》(深消安委辦〔2020〕1號)要求開展“三小”場所違規住人排查工作。日常信息流轉不順暢,對下屬的三圍社區網格中隊情況掌握不到位,存在隊伍管控不力的現象。2.三圍社區網格巡查中隊內部管理較混亂,網格員存在違反工作紀律的行為。三圍社區網格中隊的中隊長、副中隊長不清楚本中隊的上級掛點領導,不了解本中隊的分組管理情況,對隊員的跟蹤管理不到位,日常督導檢查力度欠缺。該中隊網格員存在亂作為表現,未按《寶安區網格綜管隊伍下沉社區工作指引》要求開展巡查、代巡工作,在未接觸或聯系馬金花(酸奶店主)的情況下,代替馬金花簽署《“三小”場所消防安全培訓表》《“三小”場所消防安全檢查告知書》《消防安全隱患整改通知書》《“三小”場所消防安全復查意見書》《“三小”場所消防安全承諾書》《“三小”場所防火自律公約》和《“三小”場所業主、實際經營人安全主體責任承諾書》共7份文書。3.三圍社區工作站網格巡查工作有待加強,防疫期間的基層巡查存在顧此失彼現象。根據《關于印發航城街道三小場所和出租屋消防安全治理長效機制的通知》(2018年11月9日)第二條第(四)項規定:社區工作站負責按照“一棟一檔”的要求,做好轄區排查登記工作的臺賬資料建檔,及時處置搭建閣樓和房中房等違章行為等。2019年3月13日,三圍社區工作站在雅居苑小區1009號商鋪完成零星工程備案后,對商鋪裝修過程疏于巡查和監管,未發現實際裝修內容與備案裝修內容不相符。根據中央綜治辦等五部委《關于街道鄉鎮推行消防安全網格化管理的指導意見》(公通字〔2012〕28號)[ 中央綜治辦、公安部、民政部、國家工商總局、國家安全監管總局《關于街道鄉鎮推行消防安全網格化管理的指導意見》(公通字〔2012〕28號)二、消防安全網格化管理責任(二)居民委員會、村民委員會責任。居民委員會、村民委員會主任是網格中消防工作的第一責任人,對本網格消防安全管理全面負責;社區、村“兩委”委員應確定1至2名消防專兼職管理人員,具體負責本級消防安全網格化管理日常工作,組織建立防火安全公約,開展經常性防火檢查、消防宣傳教育和組織撲救初起火災。],社區對本轄區消防安全管理全面負責,具體負責本級消防安全網格化管理日常工作,開展經常性防火檢查和消防宣傳教育。疫情防控期間,三圍社區督促落實轄區“三小”場所安全巡查責任不徹底,未發現雅居苑小區1009號商鋪違規搭建閣樓及違規住人的情況。疫情防控期間,社會各界全力開展抗疫阻擊戰,政府部門幾乎所有力量均壓到防疫一線并超負荷運轉,尤其是寶安區航城街道擔負轄區3個交通卡口、20多條車道的排查工作,事發前一個月連續奮戰在防疫一線,摸排2.73萬名湖北籍人員,服務管理5188名被隔離人員,核查處理大數據推送的99575條人員信息,勸阻返深1.98萬名湖北疫區人員,防疫排查6531家“三小場所”等工作,大量的防疫工作占用了網格和社區一線工作人員的主要精力,在一定程度上削弱了基層網格及社區工作站原有的日常巡查工作。鑒于上述疫情因素影響,建議責令航城街道辦向寶安區政府作出書面檢討;責令寶安區政府督促航城街道辦對存在的相關問題進行及時整頓。(一)全面系統具體的理解和落實消防安全責任制,進一步推動新時期消防工作創新發展。按照“政府統一領導、部門依法監管、單位全面負責、公民積極參與”的原則,堅持黨政同責、一崗雙責、齊抓共管、失職追責,進一步健全消防安全責任制,提高公共消防安全水平,預防火災和減少火災危害,保障人民群眾生命財產安全。各區(新區)政府應當落實消防工作責任制,督促所屬部門和街道落實消防安全責任制,建立常態化火災隱患排查整治機制。各街道應當部署消防安全整治,組織開展消防安全檢查,督促整改火災隱患。單位和個人應當堅持安全自查、隱患自除、責任自負,履行好消防安全主體責任。通過消防安全承諾、消防安全告知、隱患風險清單,厘清責任邊界,劃定紅線底線,切實做到履職有依據、追責有出處。消防救援機構要按照“三定”規定和機構編制方案(中編辦發〔2019〕231號)有關要求,依法行使消防安全綜合監管職能,推動落實消防安全責任制。各區(新區)政府其他有關部門按照“管行業必須管安全、管業務必須管安全、管生產經營必須管安全”的要求,在各自職責范圍內依法依規做好本行業、本系統的消防安全工作。(二)借鑒商品房住宅小區的物業管理模式,提升小產權房、統建樓和城中村圍蔽樓棟片區的物業企業安全管理能力。從雅居苑統建樓“2·23”火災分析,其物業服務企業雅居順物業公司未按照法律法規落實相關職責,物業內部隊伍管理混亂無序,未保持消防設施特別是消防控制室主機的完整好用,火災發生時感煙探測器雖有動作但不能及時發出警報,值班人員在發現異常后自始至終未報警,員工不具備消防“四個能力”。對此,在上述對雅居順物業公司依法處理的基礎上,航城街道要對轄區內的小產權、統建樓、城中村圍蔽樓棟片區(以下簡稱“非商品房住宅”)進行摸查統計,對于非商品房住宅的已有物業服務企業,可請第三方專業機構對其進行消防能力評估,并提請區相關部門聯合開展業務指導和培訓,幫助其建立健全消防安全責任制,落實好值班值守制度,有效提升應急處置能力。對于無物業服務企業的非商品房住宅,要督促社區居委會、股份公司采取可行的辦法,通過壓實房東、二房東、出租收益人等群體的相關責任,加強對轄區非商品房住宅消防安全的督促指導。同時,全市各區(新區)要對照上述要求,推動各街道及時開展好相關工作,結合年內開展的各類專項治理行動,從本轄區的實際情況出發,一并抓好非商品房住宅的消防安全管理水平;寶安區可督促航城街道先行先試,為全市其他街道提供可推廣的經驗。(三)提高市場準入門檻和工作管理標準,進一步建立健全用電安全動態監控系統服務企業的日常監督管理。用電安全監控手段的立足點和出發點是值得肯定的,對及時監控和預警用電安全隱患具有積極作用。調查發現,成華騰達公司監控平臺,在火災發生時接收到事故商鋪內組合式電氣火災監控探測器(獨立式)離線信息,未通過手機短信或手機APP或微信公眾號同步送達相關管理人員,且該企業遠程監控平臺處于無人值班狀態,暴露出了自身的短板和漏洞,說明該企業在實際運營過程中缺乏加強自我監管。尤其是“2·23”火災發生時的深夜,該公司無人值班值守,不能第一時間響應系統提示信息,因此未對用戶采取任何預警提醒措施。此外,該企業對于系統監控過程中反饋的警報信息,處理時間較滯后,或通常直接采取復位處理,未逐一及時通知用戶。對此,寶安區有關部門應針對成華騰達公司暴露的問題,從督促規范其24小時值班值守和同步處置系統監控信息等方面入手,扎實開展一次專項排查整頓工作。對于其是否存在監控技術漏洞,是否降低相關國家標準、行業標準,必要時可聘請具備資質的第三方專業機構進行檢測評估。專項排查整頓工作要舉一反三,既要對該企業目前所有的服務用戶、服務管理情況進行摸底分析,也要對寶安區全區范圍內的同類用電安全監控企業一并進行排查或整頓,從而進一步規范此類市場的運營秩序。全市各區(新區)要以此為鑒,主動開展相應的排查整頓行動,對正在運營的用電安全(電氣火災)監控服務企業,及時督促其落實好合同義務,確實做好值班值守工作。作為先行示范區,未來推廣中要執行更高的建設標準,對于今后進入此類市場運營的企業,用電安全動態監控系統要按照《電氣火災監控系統》(GB14287-2014)相關國家標準執行。(四)強化基層消防網格管理,嚴防“三小”場所違規住人等現象。要根據《關于街道鄉鎮推行消防安全網格化管理的指導意見》(公通字〔2012〕28號)和《深圳市人民政府關于加強和改進消防工作的實施意見》(深府〔2013〕53號)[ 《深圳市人民政府關于加強和改進消防工作的實施意見》(深府〔2013〕53號)三、切實強化火災預防(八)實施消防安全網格化管理。各社區要建立消防巡查服務隊和兼職消防隊等消防安全組織,著力提升基層消防工作水平。]文件精神,不斷建立健全街道、鄉鎮(社區)消防安全組織,落實基層消防工作責任,通過消防安全網格化管理,夯實城鄉火災防控基礎,有效預防和減少火災事故。各區(新區)要發揮街道、社區網絡管理組織作用,壓實、強化網格管理責任,嚴格落實各項網格化管理制度,常態開展多方式的督導、考核,確保網格巡查、排查工作有序有效開展,實現網格責任明確、制度規范、常態巡查的閉環管理。強化早巡、午巡、夜巡等常態化巡查工作,提升網格巡查排查工作的覆蓋面和精準度;以“消安委吹哨、街道報到、行業參與、網格行動”的模式,定期組織開展聯合巡查排查行動,不斷消除動態隱患;落實一格一員和網格員“實名制”的責任制度,強化廣大網格員的責任意識,確保巡查排查工作落到實處。探索和提升技防手段,用科技裝備武裝社會面管理和安全監管,通過安裝紅外線感設備等措施監測和解決“三小”場所違規住人問題。讓網上數據多跑腿,實行“三小”場所人員經營點、住宿點雙登記,在“管控通”系統增加“三小”場所經營者退房、退租、搬離等信息變動提醒功能,督促責任網格員及時跟蹤巡查,有針對性地及時開展敲門排查。各街道安委辦、消安委辦、綜合執法隊、網格中心要形成合力,通過基層“巡”與“整”的緊密對接,實現基層消防安全隱患整治工作閉環。派駐街道的其他有關執法機構應當按照法律法規有關要求,履行好查隱患、除隱患的相關工作職責,確實做到守土有責、守土盡責,加大對消防安全違法行為和火災隱患的查處、整治力度,確保基層消防安全形勢持續平穩。(五)強化消防安全宣傳教育,提升全民消防安全意識。加強社會單位消防安全責任人、管理人和消防控制室值班操作人員、微型消防站工作人員等重點崗位人員的消防業務培訓工作,提升單位消防安全“四個能力”。充分利用互聯網、電視、報紙、新媒體、手機APP等傳播途徑,高頻次播發防火提示和消防公益廣告;利用微信、短信等形式開展對各類目標人群的定向、精準宣傳,形成濃厚宣傳氛圍。對于少數民族市民集中居住地和經營場所,民政、宗教、消防等部門可聯合開展消防安全“雙語”宣傳,并發展和培養一批少數民族義務宣傳員,增強民族文化和宣傳工作的認同感,以點帶面提升各族市民朋友的消防安全意識。統一制作“三小”場所負面清單,并在場所門口統一格式張貼上墻,鼓勵市民參加消防隱患有獎投訴舉報;利用微信群和掃碼觀看等方式,定期推送各類消防宣傳小視頻,形成全民消防宣傳常態化;組織開展消防講座、消防應急演練等線下培訓活動,普及防火、滅火和疏散逃生自救等知識,構建人人學消防、全民懂安全的良好氛圍。加大火災案例警示教育力度,深刻剖析事故原因及教訓,用血淋淋、觸目驚心的身邊人、身邊事,讓廣大市民朋友將消防安全內化于心、外化于行。建立健全消防安全誠信體系,優化“對無事者不擾,對違法者利劍高懸”的監管模式,將失信企業和個人納入誠信系統,廣而告之加大曝光力度,提升監督執法的威懾力和震懾力。(六)堅持源頭管控和疏堵結合,形成更加扎實有效的綜合治理體系。“2·23”火災事故暴露出“三小”場所違規住人“回潮”現象,也暴露出非商品房住宅小區物業消防管理的短板和漏洞,并反映出基層網格管理工作的細節末端有待進一步捋順。當前,疫情防控工作還面臨著諸多任務,各區(新區)要針對企業逐步復工復產的特點,加強安全指引和日常督導巡查,防止復工復產引發消防安全隱患集中突發問題。要加強動態隱患排查和火災防控力度,把城中村、出租屋、工業園、城鄉結合部等場所和部位,納入“查隱患、除風險”的范圍,嚴防小火亡人、群死群傷等事故。治理過程中,相關部門要綜合施策、形成合力,按照“一街道一對策、一行業一對策”的原則,對重點場所、不放心部位,持續開展專項治理行動并形成長效機制。同時,要注重疏堵結合的原則,統籌推進民生服務保障工程,在清理“三小”場所違規住人行動中,對于在轄區內經營卻因各種困難而無法落地租房的,幫助提供相關的租房信息指引,通過政府力所能及的行動,為弱勢群體提供民生服務;有計劃地逐步實施電動自行車充電點、充電柜建設,為電動自行車集中停放和充電提供便利。要強化整治工作的執法力度,對于人員密集場所、“三小”場所、“三合一”和“多合一”場所,要堅決消除違規住人、違規進樓充電、亂拉電線、違規用火用電、儲存和使用易燃易爆危險化學品等現象,對于造成重大消防安全隱患的,要以零容忍的態度堅決依法查處。